Med pulpettak

 
 

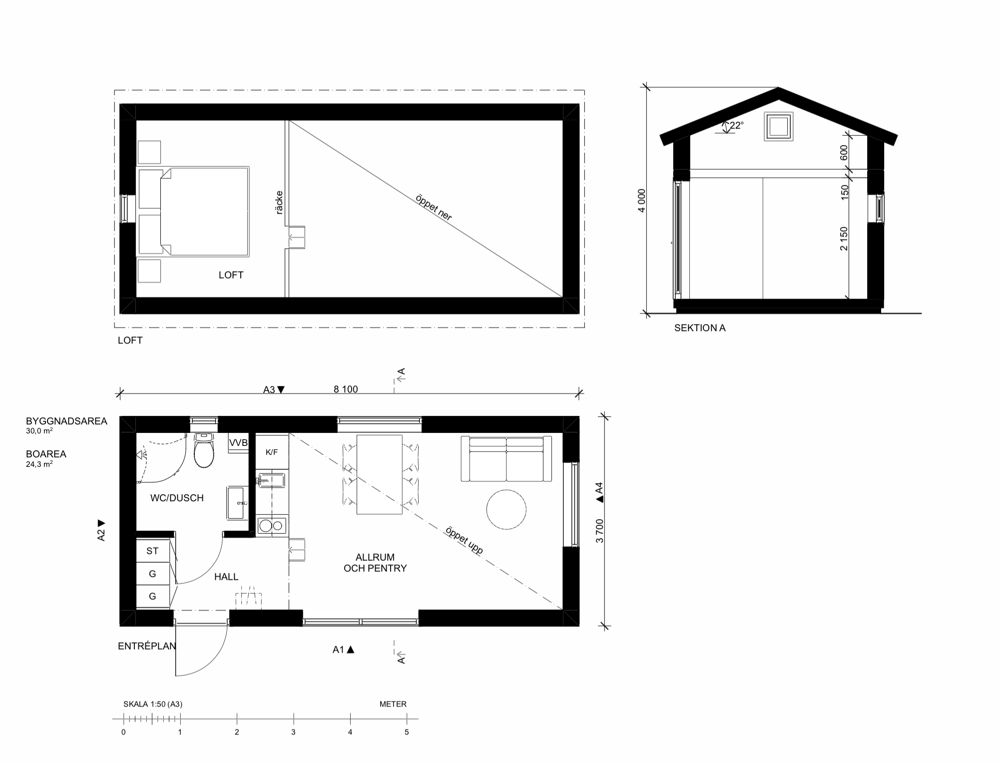
Attefallshus Torekov 30

Ett optimalt och spännande attefallshus som uppfyller alla regler för ett komplementsbostadshus på 30 m2.

Huset har ett stort allrum med kök, ett badrum med dusch, WC, VVB samt ett komplett kök.

Här har ni helt enkelt det kompletta attefallshuset.

Vi kan anpassa huset helt efter egna önskemål vad gäller materialval och taklösning, du kan även få med loft.

 
 

Planlösning

Stor valfrihet i val av fasadmaterial, takutformning och material.

Med loft

 

Fasader pulpettak

Planritning

 
 
 
Med sadeltak

Med sadeltak

Screenshot 2021-01-21 at 17.04.46.png

Fasader sadeltak

Screenshot 2021-01-21 at 17.00.49.png
 
 

Fakta & Priser

Här har du innehåll, specifikationer och priser på våra Attefallshus. Om du hellre pratar med oss personligen, kontakta oss gärna.

 

Fakta

Träfasad
Se pdf

Priser

Se pdf

 

Kontakta oss

Kontakta oss via telefon, e-post eller fyll i kontaktformuläret nedan:

031- 22 05 50
info@easy-house.se

Kontaktformulär - Attefallshus Torekov 30

 

Fler Attefallshus

Stor valfrihet i val av fasadmaterial, takutformning och material.

Ystad 30

6,5 x 4,6 M

Se modell

Åhus 30

7,5 x 4 M

Se modell